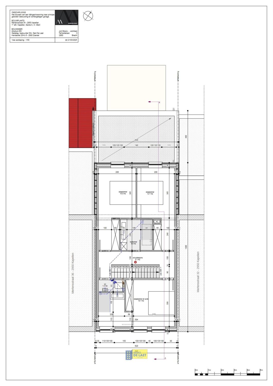
Nieuwbouw BEN-woning met 5 slaapkamers en 3 badkamers in rustige en doodlopende straat in Kapellen. We komen de woning binnen via de inkomhal met plaats voor vestiaire. Doorgang naar de ruime living met eetplaats en open keuken. Via een groot schuifraam toegang tot de tuin met terras. Achteraan het perceel is er een garage voor 2 wagens voorzien met doorgang naar tuin. Verder is er nog een berging met plaats voor wasmachine en droogkast, een aparte wc en een handige bureelruimte. Op de eerste verdieping bevindt zich de Master bedroom met ensuite badkamer, 2 slaapkamers, een 2e badkamer en aparte wc. Op de tweede verdieping bevinden zich nog 2 slaapkamers, een 3e badkamer en een technische berging. Zeer energiezuinig door uitvoerige isolatie, warmtepomp in combinatie met vloerverwarming en zonnepanelen.