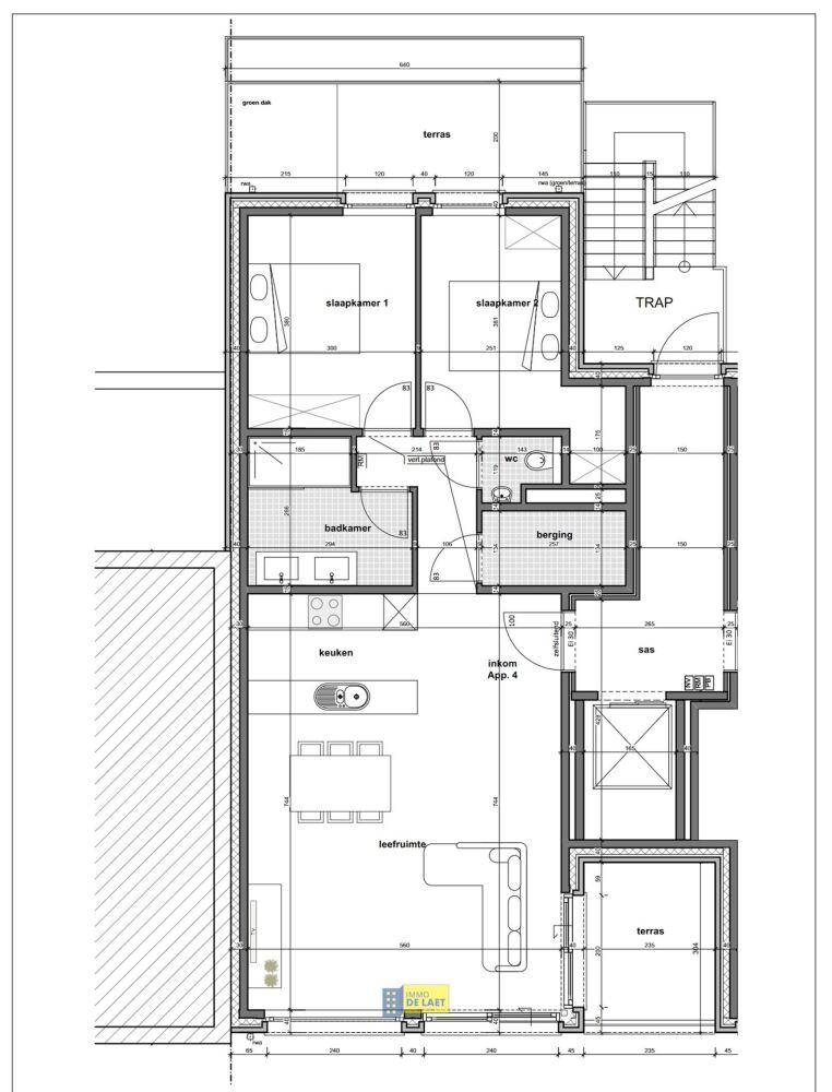
Nieuwbouwappartement te huur op toplocatie in Kapellen Locatie Dit appartement is ideaal gelegen, vlakbij scholen, winkels, openbaar vervoer en met een vlotte verbinding naar omliggende gemeenten. U geniet van alle comfort in een rustige, doch centrale omgeving. Indeling Het appartement beschikt over een inkomhal die toegang biedt tot de ruime, lichtrijke leefruimte met een open, volledig ingerichte keuken. Verder zijn er twee volwaardige slaapkamers, een apart toilet, een moderne badkamer met inloopdouche en een praktische berging. Alsook is er een terras voorzien. Extra voorzieningen - Inclusief autostaanplaats - Privatieve kelderberging - Gemeenschappelijke fietsenberging Bijzonderheden - Op wandelafstand van het centrum van Kapellen - Parkeerplaats inbegrepen - Algemene kosten: 60/maand - Individuele meters voor nutsvoorzieningen - Standaard huurcontract van 9 jaar Interesse? Contacteer ons vandaag nog voor een bezichtiging!