Nieuwbouwwoning in Schoten
Fluitbergstraat 19, 2900 Schoten
Kenmerken
| Eigenschap | Waarde |
|---|---|
| Subtype | Nieuwbouwwoning |
| Constructie | Beton |
| Staat | Nieuwbouw |
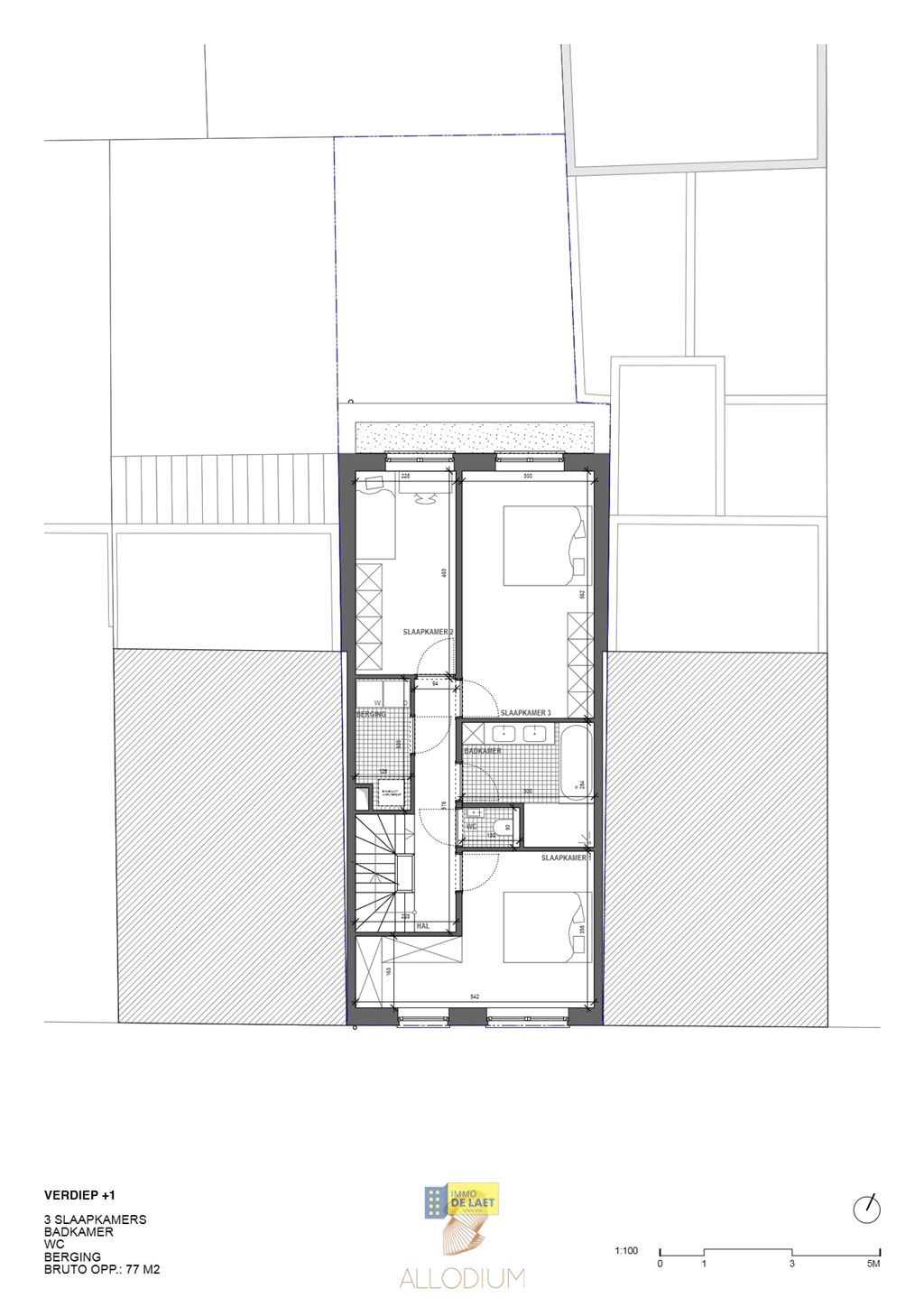
| Slaapkamers | 4 |
| Badkamers | 2 |
| Toiletten | 0 |
| Bew. opp. | 188.5 m² |
| Grond opp. | 119 m² |
| Tuin opp. | 32.5 m² |
| Terras | 8.8 m² |
| Garages | 1 |
| Oriëntatie tuin | Noordwest |
| Oriëntatie terras | Noordwest |
Energie & keuring
| Aspect | Waarde |
|---|---|
| EPC / Label | Geen EPC (kWh/m²jaar) |
| E-peil | E-peil 20 |
| Verwarming | Individueel · Warmtepomp |
| Ramen | Pvc · Dubbel |
| Elektriciteit | Ja, conform AREI |
Stedenbouw & juridisch
| Aspect | Status |
|---|---|
| Vergunning | Ja |
| Verkavelingsverg. | Nee |
| Bestemming | Woongebied |
| Overstromingsgevoelig | Nee |
| Overstromingsscore | G: Klasse A P: Klasse A G = gebouw · P = perceel |
| Voorkooprecht | Nee |
| Juridische beslissing | Nog niet aangevraagd |
Beschrijving
Aankoop mogelijk aan 6% BTW! Deze prachtige energiezuinige nieuwbouwwoning is ideaal gelegen in het centrum van Schoten, op wandelafstand van winkels, scholen en openbaar vervoer. De woning combineert modern comfort met een duurzame bouwkwaliteit.
Op het gelijkvloers bevindt zich een lichtrijke leefruimte met open, volledig ingerichte keuken die uitgeeft op de tuin. De woning beschikt over 4 ruime slaapkamers en 2 stijlvolle badkamers, ideaal voor gezinnen of wie extra ruimte zoekt voor bureau of hobbykamer.
Dankzij de warmtepomp, zonnepanelen, hoogwaardige isolatie en ventilatiesysteem D geniet u van een laag energieverbruik en optimaal wooncomfort. Verder beschikt de woning over een garage en een verfijnde afwerking met kwalitatieve materialen.
Een instapklare, toekomstgerichte woning op een topligging in het centrum van Schoten.
