Nieuwbouwwoning in De Klinge
Macharius Rheynstraat 12, 9170 De Klinge
Kenmerken
| Eigenschap | Waarde |
|---|---|
| Subtype | Nieuwbouwwoning |
| Constructie | Beton |
| Staat | Nieuwbouw |
| Slaapkamers | 6 |
| Badkamers | 2 |
| Toiletten | 3 |
| Bew. opp. | 230 m² |
| Grond opp. | 194 m² |
| Tuin opp. | 96.3 m² |
| Terras | 16 m² |
| Garages | 0 |
| Oriëntatie tuin | Zuid |
| Oriëntatie terras | Zuid |
Energie & keuring
| Aspect | Waarde |
|---|---|
| EPC / Label | Geen EPC (kWh/m²jaar) |
| E-peil | E-peil 20 |
| Verwarming | Individueel · Warmtepomp |
| Ramen | Pvc · Dubbel |
| Elektriciteit | Ja, conform AREI |
Stedenbouw & juridisch
| Aspect | Status |
|---|---|
| Vergunning | Ja |
| Verkavelingsverg. | Niet van toepassing |
| Bestemming | Woongebied |
| Overstromingsgevoelig | Nee |
| Voorkooprecht | Nee |
| Juridische beslissing | Nog niet aangevraagd |
Beschrijving
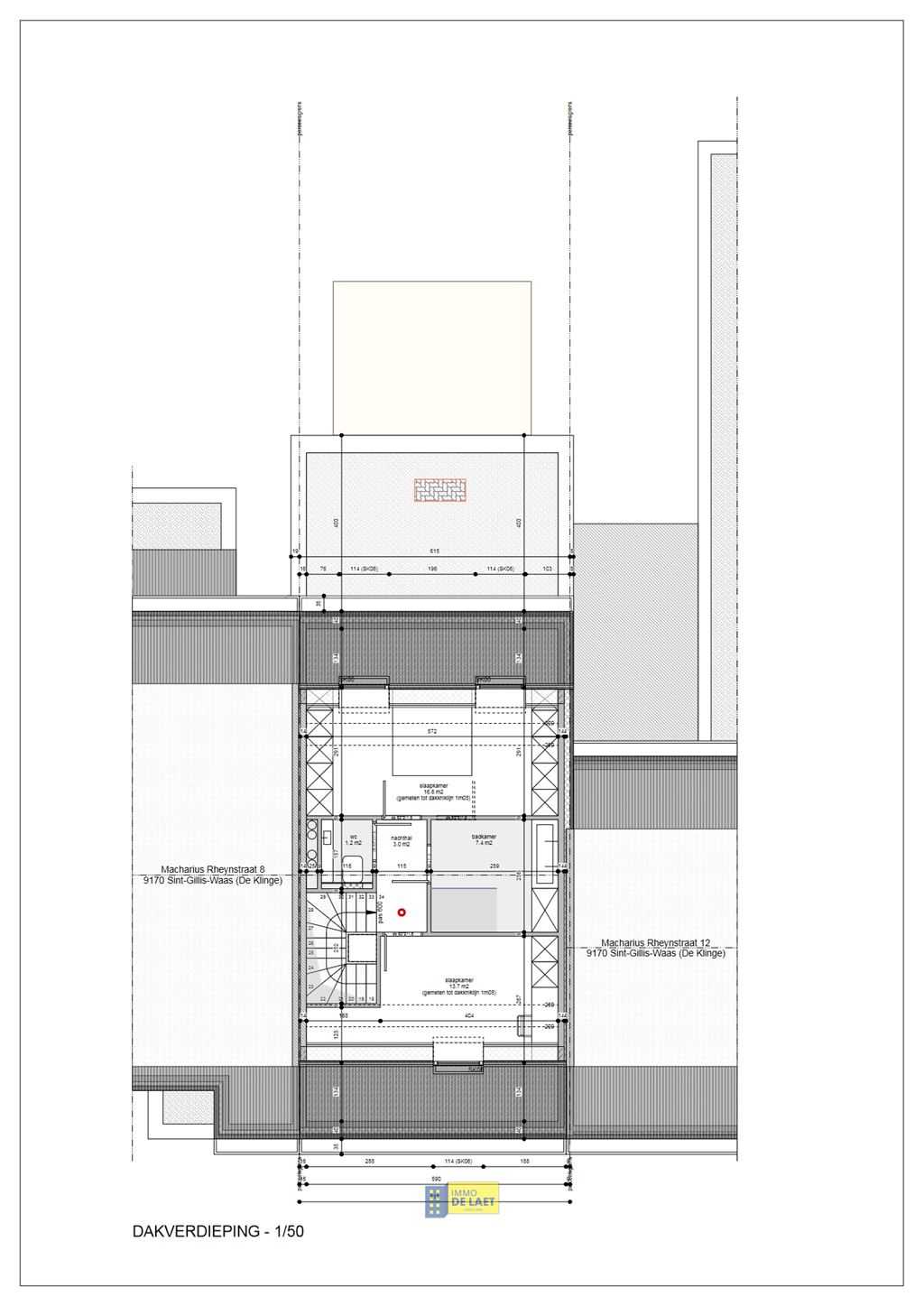
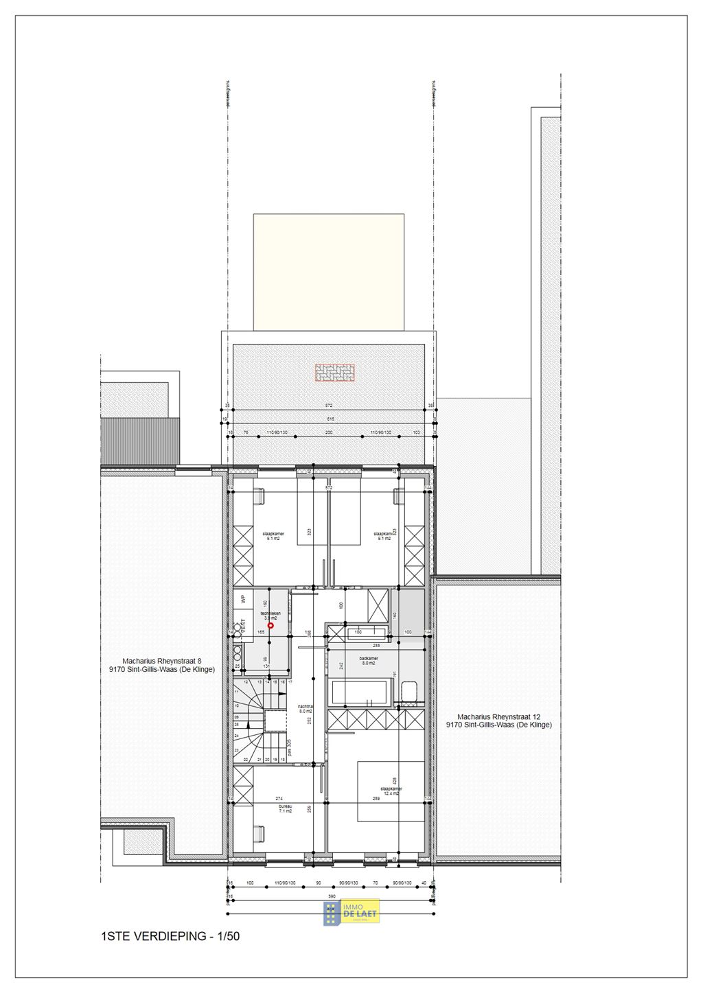
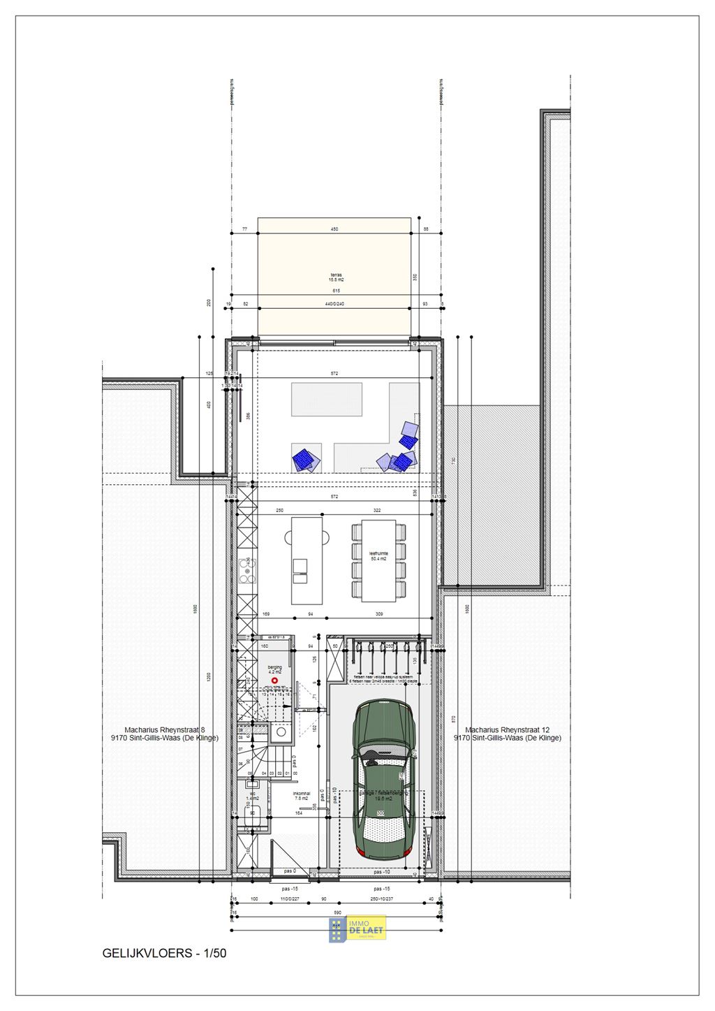
Nieuwbouw BEN-woning met 5 slaapkamers, bureelruimte en 2 badkamers in rustige en aangename straat. Op een boogscheut van de Clingse bossen en het stropersbos maar ook niet ver van diverse invalswegen. We komen de woning binnen via de inkomhal met plaats voor vestiaire. Doorgang naar de ruime living met eetplaats en open keuken. Via een groot schuifraam toegang tot de tuin met terras. Verder is er nog een berging met plaats voor wasmachine en droogkast, een aparte wc en een handige bureelruimte. Ook voorzien van garage met plaats voor fietsen. Op de eerste verdieping bevinden zich 3 slaapkamers en een bureelruimte. Verder is er nog een badkamer en een technische berging. Op de tweede verdieping bevinden zich nog 2 slaapkamers, een badkamer en een aparte wc. Zeer energiezuinig door uitvoerige isolatie, warmtepomp in combinatie met vloerverwarming en zonnepanelen.
