Te koopAppartementNijlenNieuw
Appartement in Nijlen
Statiestraat 10, 2560 Nijlen
Foto 1 van 2
Bew. opp.
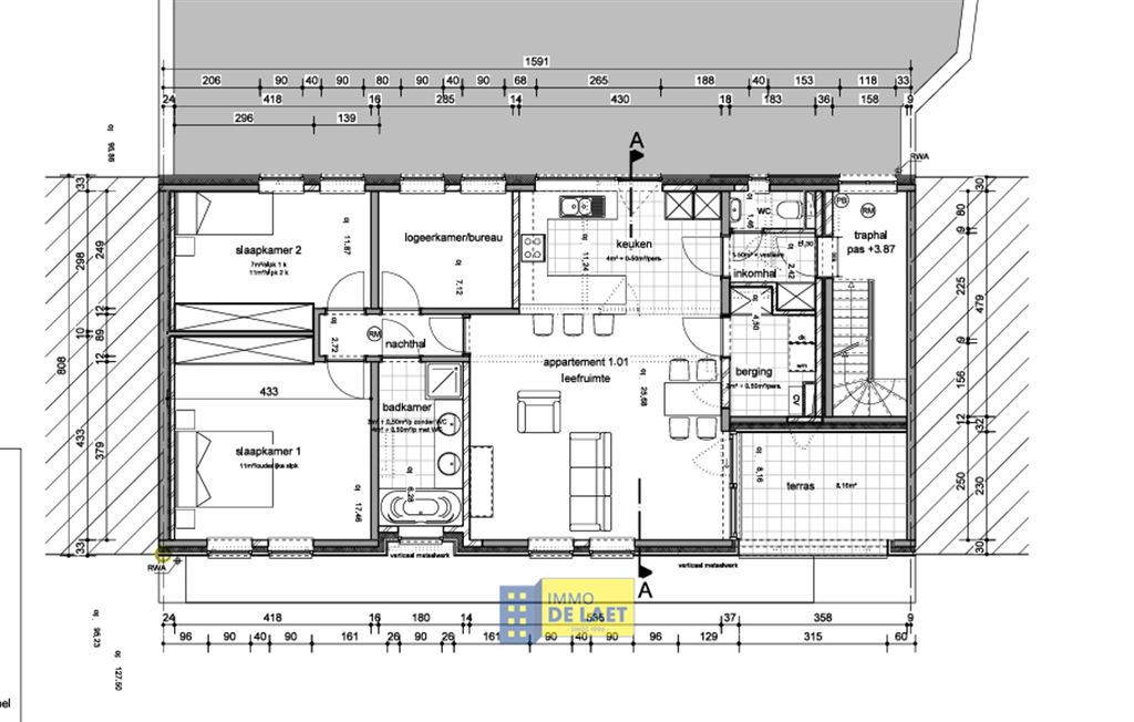
125 m²
Slaapkamers
0
Badkamers
0
Type
Appartement
Kenmerken
| Eigenschap | Waarde |
|---|---|
| Subtype | Appartement |
| Constructie | Traditioneel (1964) |
| Staat | Te renoveren |
| Slaapkamers | 0 |
| Badkamers | 0 |
| Toiletten | 0 |
| Bew. opp. | 125 m² |
| Garages | 0 |
Energie & keuring
| Aspect | Waarde |
|---|---|
| EPC / Label | F (kWh/m²jaar) |
| Verwarming | Niet meegedeeld · Niet meegedeeld |
| Ramen | Enkel |
| Elektriciteit | Nee |
Stedenbouw & juridisch
| Aspect | Status |
|---|---|
| Vergunning | Ja |
| Verkavelingsverg. | Niet van toepassing |
| Bestemming | Woongebied |
| Overstromingsgevoelig | Nee |
| Overstromingsscore | G: Klasse C P: Klasse C G = gebouw · P = perceel |
| Voorkooprecht | Nee |
| Juridische beslissing | Nog niet aangevraagd |
Beschrijving
Ruwbouwappartement in het centrum van Nijlen
Dit ruwbouwappartement is gelegen op een centrale locatie in Nijlen, boven de winkelketen Carrefour, op wandelafstand van het station en andere voorzieningen.
De ruwbouw is wind- en waterdicht uitgevoerd en beschikt over een praktische, functionele indeling, wat een vlotte verdere afwerking mogelijk maakt.
Daarnaast is er een goedgekeurde bouwvergunning voor het realiseren van een extra verdieping. Deze bouwvergunning kan worden overgekocht, wat dit pand bijzonder interessant maakt voor projectontwikkelaars en investeerders.
Voor meer informatie of een bezoek, neem gerust contact op.
info@immodelaet.be
03.644.00.88
