Te koopNieuwbouw AppartementSchoten
Nieuwbouw Appartement in Schoten
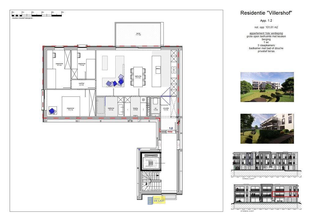
Villerslei 92-94, 2900 Schoten
Foto 1 van 14
Grond opp.
92 m²
Slaapkamers
3
Badkamers
1
Type
Nieuwbouw Appartement
Kenmerken
| Eigenschap | Waarde |
|---|---|
| Subtype | Nieuwbouw Appartement |
| Constructie | Beton |
| Staat | Nieuwbouw |
| Slaapkamers | 3 |
| Badkamers | 1 |
| Toiletten | 0 |
| Bew. opp. | 0 m² |
| Grond opp. | 92 m² |
| Terras | 11.7 m² |
| Garages | 0 |
| Parkeerplaatsen | 1 |
| Oriëntatie terras | Zuid |
Energie & keuring
| Aspect | Waarde |
|---|---|
| EPC / Label | Geen EPC (kWh/m²jaar) |
| E-peil | E-peil 20 |
| Verwarming | Individueel · Warmtepomp |
| Ramen | Pvc · Dubbel |
| Elektriciteit | Ja, conform AREI |
Stedenbouw & juridisch
| Aspect | Status |
|---|---|
| Vergunning | Ja |
| Verkavelingsverg. | Niet van toepassing |
| Bestemming | Woongebied |
| Overstromingsgevoelig | Nee |
| Voorkooprecht | Nee |
| Juridische beslissing | Nog niet aangevraagd |
Beschrijving
Luxe-appartement op de eerste verdieping met 3 slaapkamers en 1 badkamer. Ruime living met open keuken die uitgeven op de zuidgerichte tuin met terras. Zicht op eigen groene omgeving aan de achterkant. BEN appartementen door de uitvoerige isolatie, warmtepomp met vloerverwarming en zonnepanelen. Contacteer ons voor een afspraak.
